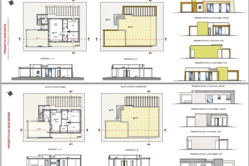
Nel silenzio della campagna di Matino, a pochi minuti dalle spiagge cristalline di Gallipoli, questa villa di nuova costruzione rappresenta un perfetto equilibrio tra modernità e natura. Circondata da circa 4.000 mq di terreno piantumato con ulivi e alberi da frutto, la proprietà offre spazi ben distribuiti e luminosi: un soggiorno con cucina a vista, due camere da letto e due bagni, pensati per garantire comfort e funzionalità. Gli ambienti sono serviti da riscaldamento a pavimento, pompa di calore di ultima generazione ed infissi in alluminio con vetrocamere che assicurano isolamento e risparmio energetico. Una scala esterna conduce all’area solare di proprietà, ideale per momenti di relax o per valorizzare ulteriormente lo spazio. Una soluzione abitativa pronta da vivere, immersa nel verde e nella luce del Salento. Per scoprire altre proposte e seguire da vicino il nostro lavoro, visita la pagina Instagram @ventodelsud20.





















