Cutrofiano – ” Contrada Lustrelle ” – A Cutrofiano paese della Grecia Salentina, a pochi Km dal capoluogo e dai mari che bagnano l’intera provincia di Lecce, proponiamo in vendita un’esclusiva dimora storica messa in vendita con mezzo ettaro di terreno agricolo (seminativo, uliveto) con possibilità di acquistare ulteriori 4 ettari e mezzo di terreno.
L’immobile, che ha le caratteristiche del casale di campagna di tipo nobiliare, è organizzato su due livelli.
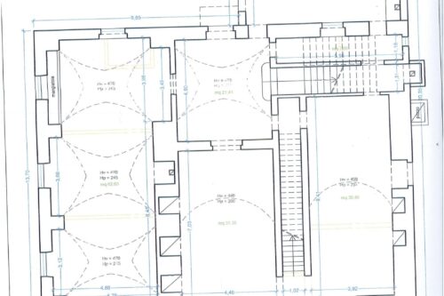
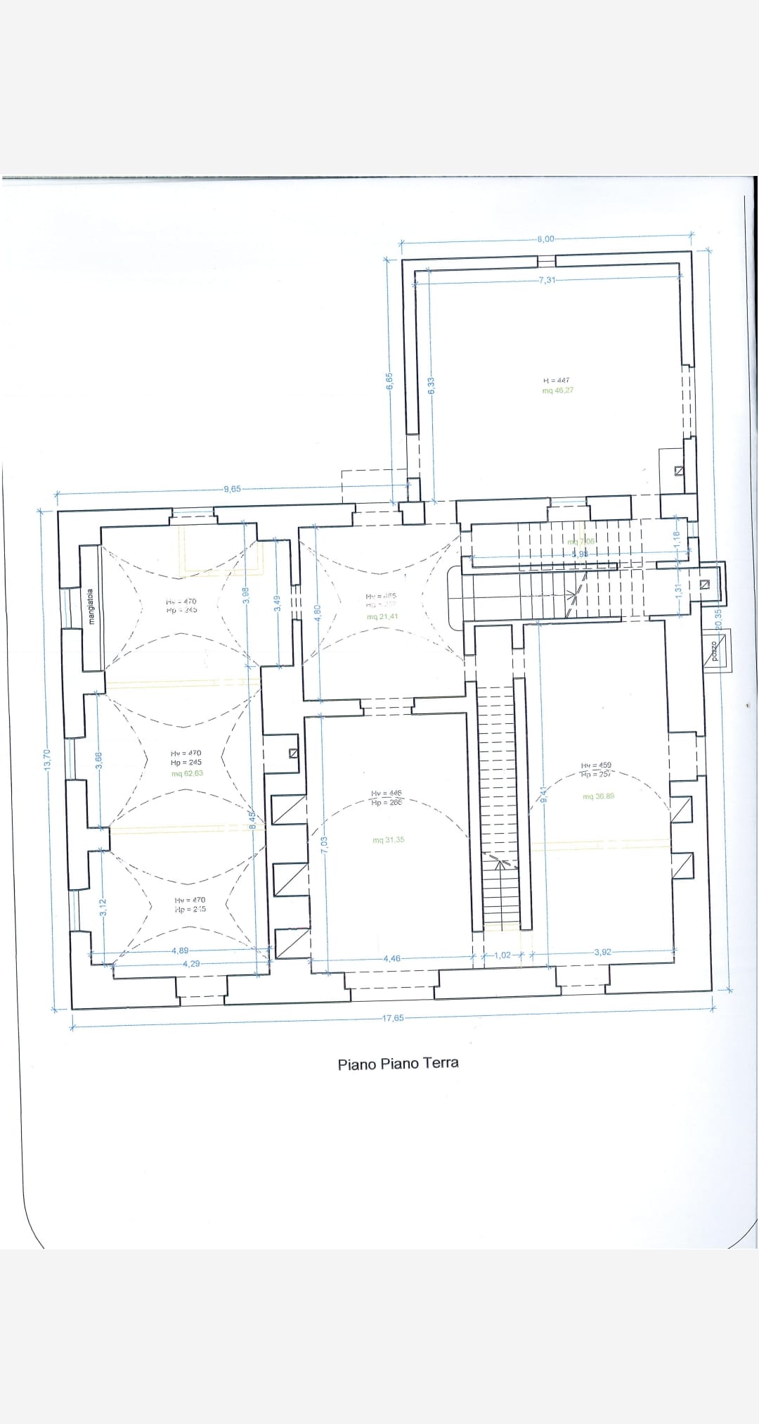
A piano terra vi sono due stanze, una con volta a botte e una con volta a stella che compongono il nucleo centrale del fabbricato. A destra e sinistra di queste due stanze trovano spazio una serie di vani secondari anche questi con volte a stella e volte a botte e un servizio igienico.
Completano gli ambienti al piano terra, un grande vano collocato sul prospetto posteriore e altri piccoli ambienti ricavati dai sottoscala.
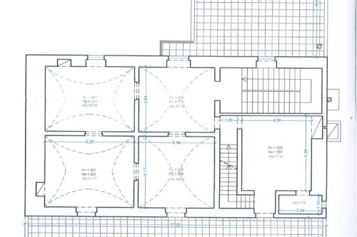
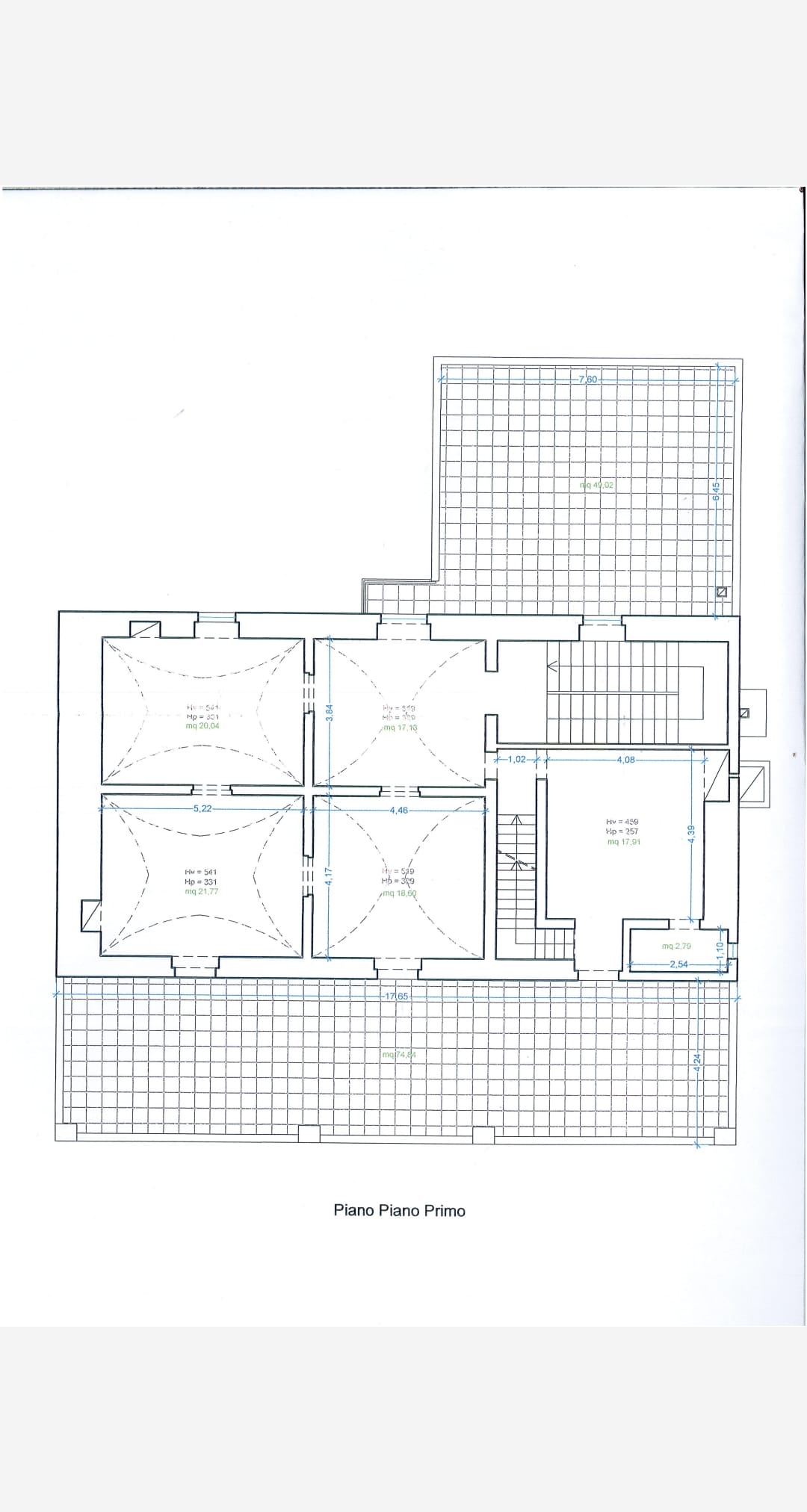
Un imponente scala a doppia rampa e con volta a padiglione conduce al piano primo dove troviamo 5 stanze tutte illuminate da finestre collocate sui vari prospetti e coperte da volte a stella quelle laterali e a padiglione quelle centrali.
Le 3 stanze con affaccio sul prospetto principale hanno delle portefinestre che ne garantiscono il collegamento diretto con la grande terrazza che completa il prospetto anteriore.
Dalla stanza centrale affacciata sul prospetto posteriore si esce su un’altra grande terrazza esterna.
Nella stanza posta nell’angolo destro è ubicata la cucina, il bagno e la scala che conduce al piano delle coperture.
La masseria si trova in discrete condizioni strutturali ma merita alcuni lavori di restauro per renderla unica nel suo genere.
L’architettura sobria ed elegante è impreziosita da pregiati decori come le maestose volte del piano inferiore e superiore e meravigliosi pavimenti merlettati delle cementine dell’epoca del piano superiore.
Il terreno circostante (mezzo ettaro) è coltivato con metodi biologici.
Possibilità di acquistare fino a 4 ettari e mezzo aggiuntivi.
























































